Cavallino-Treporti, prima fila sulla laguna di Venezia. A pochi passi dal mare e dalla natura incontaminata del litorale veneto, nasce Enula Village: un complesso residenziale di nuova costruzione pensato per chi vuole una seconda casa che lavori per sé — da vivere, affittare e valorizzare nel tempo. Lo stile è mediterraneo contemporaneo, integrato nel paesaggio con materiali di qualità e ampie vetrate che portano dentro la luce dell’Adriatico.
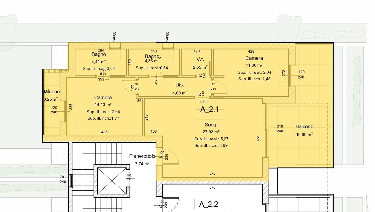
Ogni appartamento è progettato con giardini privati o terrazzi generosi e spazi che funzionano sia d’estate che in bassa stagione. Il progetto conta 42 soluzioni abitative nella formula trilocale o quadrilocale. Ogni unità include posto auto coperto e condizionamento canalizzato nel prezzo. Le finiture sono personalizzabili: è possibile richiedere il riscaldamento a pavimento e la ventilazione meccanica controllata (VMC).
Il fulcro del complesso è un’area benessere di oltre 1.500 mq con piscina da 600 mq immersa nel verde — un elemento raro nel panorama residenziale locale, e un forte valore aggiunto.
I lavori inizieranno a maggio 2026 con consegna prevista per ottobre 2027 — chi acquista ora ha ancora la possibilità di personalizzare le finiture.
Non perdere le ultime opportunità per goderti il mare di Cavallino-Treporti — contattaci oggi per ricevere maggiori informazioni.
Riferimento
Superficie
Locali
Piano
2
Camere
2
Bagni
2
Spese condominiali mensili
Classe energetica


Contattami per ricevere maggiori informazioni o fissare un appuntamento senza impegno.